Врятована пам’ятка. Бойківська хата початку ХХ століття

DSC_8428
Хата з Плав'я Фото: Любомир Пархуць
Go to next

10:44, 2 грудня 2025

Go to next

Хата з Плав’я, що сьогодні на території Державного історико-архітектурного заповідника "Тустань", — прикметна пам’ятка бойківської народної дерев’яної архітектури. Її 1926 року звів для себе місцевий будівничий Данило Мадиняк. Усе в цій хаті зроблено руками майстра чи його дітей.

Василь Сивак

кандидат історичних наук, науковий співробітник Інституту народознавства НАН України

За спогадами Марії Мадиняк, дружини Данилового онука Богдана, Данило мав двох братів — Макара і Григорія. Григорій був талановитим майстром і звів у довколишніх селах 14 дерев’яних церков. Данило мав двох синів: Михайла й Олексу. Михайло успадкував від батька та дядька Григорія фах будівничого, а ще столярував. Міг виготовити будь-які хатні меблі. А от Олекса будівництвом не цікавився.

Мадиняки були заможними, мали багато поля та кілька пар волів. Тому Данило вирішив збудувати собі хату, яка б відповідала його творчому задуму, потребам родини, була б доволі просторою та оздоблена різьбою.

Для хати господар обрав підхоже місце: на значному підвищенні під пагорбом, трохи далі від дороги та річки Вадрусівки. Тобто на доволі сонячній та панорамній місцині. Таке розташування хати — віддалено від основної сільської вулиці — типове для тогочасного житлового будівництва Західної Бойківщини. "У верховинців долини Опору села збудовані досить вільно: окрім головного скупчення будинків біля гостинця і ріки, певна кількість господарств розкидана на найближчих схилах долини", — писав у своєму науковому дослідженні відомий польський етнолог Роман Райнфус, який у 1930 році вивчав цей край. 

МЕХП_ІН НАН України019 – копія

Фрагмент хати у селі Плав'я. Світлина Романа Райнфуса, 1930 рік

Фото: надав автор

Відвідавши село Плав’я, народознавець звернув увагу на хату Данила Мадиняка. Це засвідчує світлина фасадної частини, яку він зробив і згодом опублікував в одній зі своїх наукових розвідок. За його твердженням, місцевий люд називав себе верховинцями, а свій край — Верховиною. Він зазначав, що сільська садиба в бойків зазвичай однобудинкова, тобто під одним дахом і житлова, і господарська частини. 

Як приклад Роман Райнфус навів хату з Плав’я: "На Верховині зазвичай роблять так, що балки, які підтримують стріху, підпирають ще від чільної стіни, а часом навіть вертикальними різьбленими стовпами вздовж трьох боків будинку. Простір між стовпами на висоті один метр вище від землі оббитий дошками так, що утворюється своєрідний ґанок. Вхід на нього пролягає через оздоблені одвірки, форма яких нагадує так звані популярні підгалянські двері овальної форми. До крокви горизонтально прибивають лати, а вже до них кріплять покрівлю. Матеріалом для покрівлі на всій території Бойківщини раніше була лише солома". Саме в такому вигляді — під солом’яною стріхою з різьбленими конструктивними елементами хати та частинами галереї — зафіксував пам’ятку Роман Райнфус. Як бачимо на його світлині, вікна складаються з шести шиб і не мають пірамідального закінчення верху, який набили значно пізніше.

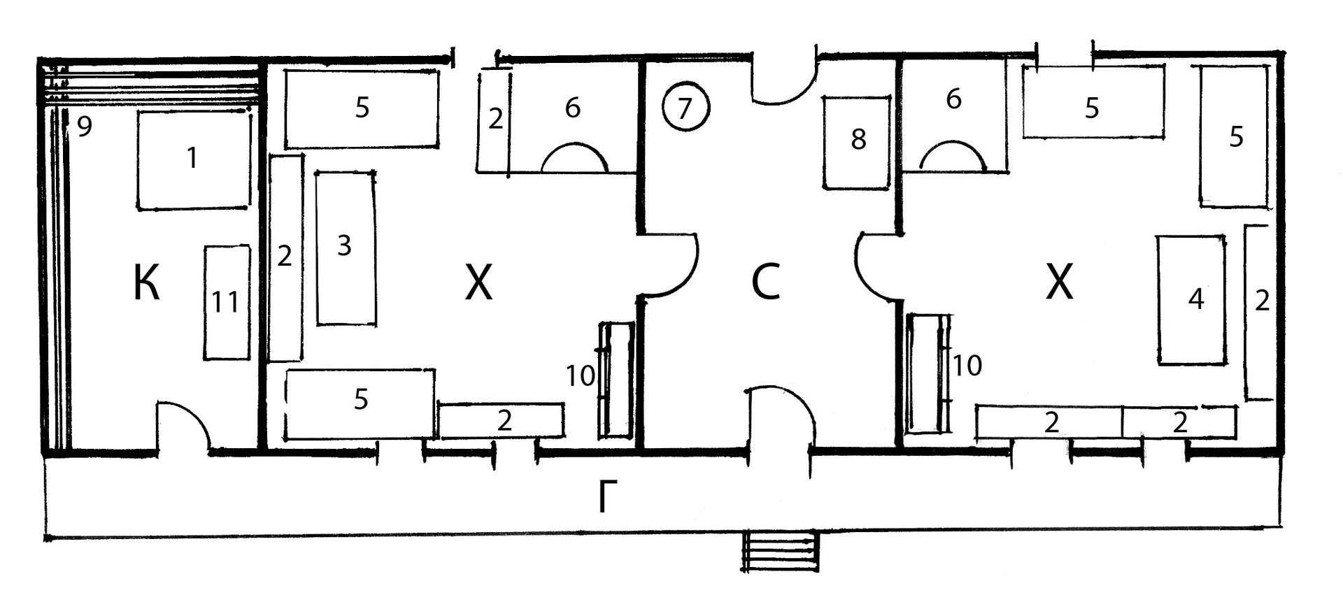
Щодо планування, то хата складалася з к + х + с + х (комора — хата — сіни — хата) та галереї. Як пригадує Марія Мадиняк: "Хату звели за місяць. Присінки затримали, бо різьбу треба було робити. Одвірки теж в різьбі зробили. Хату допомагали будувати сини Михайло і Олекса". Спершу Данило вирішив завершити частину помешкання, що містилась ліворуч від сіней, а другу, незакінчену, залишив Михайловим дітям, які згодом мали її закінчити на свій лад. У лівій частині хати жило кілька поколінь: Данило, його дружина, сини з невістками, донька та їхні діти. За твердженням жінки, разом мешкало 14 осіб. Інтер’єр хати мав класичне планування, характерне для українського народного житла. 

Схема

Схематичний план хати: Г — галерея, 1 — сусік, 2 — лави, 3 — стіл-скриня, 4 — стіл, 5 — постіль, 6 — піч, 7 — діжа, 8 — зерномолотарка, 9 — ґрєди, 10 — мисник-шафа, 11 — шафа

Фото: надав автор

При вході праворуч вимурували піч, біля неї — кухонну плиту з обігрівальним стояком. Це типова система опалення бойківського народного житла 1930-х років. ЧелюстіЗовнішній отвір печі мали прямокутну форму і їх закривали збитою з двох дощин затулою. Над припічком нависав комин, через який дим потрапляв через повалуСтелю на підГорище, відтак через вимуруваний комин виходив назовні. У пічному комині вмонтований шуберЗасув, яким перекривали потік теплого повітря назовні. Під припічком влаштована ніша, розділена полицею, де зберігали різне кухонне начиння. Збоку від кухні виведений обігрівальний стояк, у якому вмурований "котьолок"посудина для підігріву води та "брайтура"Духовка, де тримали теплими готові страви. Дим з обігрівального стояка потрапляв у пічний комин через чотиригранний бляшаний лежачок, у якому також був вмонтований шубер. Нижче від запічка вимурувана ніша, у якій зберігали картоплю та баняки з їжею для свиней та птиці. За комином і стояком зверху на печі спали троє або четверо дітей.

DSC_6174

Піч з кухонною плитою у першій хаті

Фото: надав автор

Як згадувала Марія Мадиняк, при вході до хати ліворуч в куті при сінешній стіні стояв мисник-"шафа", який виготовив Даниловий син Михайло. На полицях були розставлені миски, а в нижній шафі з дверцятами тримали горшки, каструлі. Ліворуч попід вікнами стояла лава. Вона йшла від мисника й далі до постелі. Під образами стояла ще одна лава. На них спали діти. 

Перед лавою стояв стіл, який виготовив Михайло Мадиняк. Стіл мав глибоку скриню, розділену дощинами на дві частини, зверху накриту довгою стільницею. "От коли жінка мала щось робити в хаті, то знімала стільницю, а у скрині ставила двох діточок, щоб ті, тримаючись ручками за верхні грані скринь, могли стояти і не потребували спеціального догляду, оскільки вилізти звідти самотужки не могли", — розповіла пані Марія. Зазвичай у цих скринях зберігали борошно, хліб та різноманітні крупи. Цей тип стола в науковій літературі означують як стіл-скриня. Цікаво, що в селі Плав’я на ньому міг спати старший член сім’ї. Про це архаїчне явище згадували у своїх наукових працях Іван Франко та Михайло Зубрицький. Воно невідоме більше ніде на Бойківщині чи в інших місцевостях Українських Карпат.

Ліворуч і праворуч вздовж фасадної та тильної стін були облаштовані постелі. На всіх стінах, окрім сінешної, висіли ікони: їх вішали під кутиком, а знизу вони спиралися на рейки. 

Малу дитину клали в колиску, виготовлену з дощок. Її підвішували до металевого гака, вбитого до повали. Після того як одного разу з такої колиски дитина випала, Михайло Мадиняк виготовив дитячу колиску на півдугах, що стояла на підлозі. У хаті також був бамбетель (Лава-ліжко. – Ред.) приблизно 1940-х років. У нього настеляли солому, там спали переважно діти.

Другу хату, розташовану праворуч від сіней, наприкінці 1950-х років доробляли вже Михайлові діти. Стіни і стелю оббили дранкоюТоненькими дощечками, а зверху промащували жовтою глиною. Тоді ж змурували піч. Стіл уже зробив Михайлів син Богдан. Уздовж тильної стіни розмістили постіль, далі вздовж причілкової — ще одну. Попід вікнами чільної стіни стояли дві лави зі спинками. У цій хаті ікони були розвішані так само як і в першій. Праворуч від вхідних дверей до хати стояв мисник-"шафа", який також змайстрував Богдан Мадиняк. Напередодні великих свят стіни в хатах мастили вапном. У темну пору доби помешкання освітлювали гасовими лампами. Весь одяг зберігали в коморі, розвішуючи на грєдахЖердини.

Дві постелі, які були в хаті до недавнього часу, виготовив Олексіїв син Іван в 1960-х роках. Також він зробив лави зі спинками. Влітку 2023 року хату розібрали та перевезли до Державного історико-архітектурного заповідника "Тустань", де заново склали. 

Дочитали до кінця? Підтримайте редакцію "Локальної історії" на Patreon!

Схожі матеріали

Батурин_СЕО

"Там, де гинуть гори національних скарбів". Спогад про гетьманський палац у Батурині

квіти укрїани сео

Зберегти "Квіти України". Чому радянський модернізм важливий?

сео

Відродження військового душпастирства. 20–річчя Храму Святого Архистратига Михаїла у Національній академії сухопутних військ

сео руїни

Книга як свідок обвинувачення. Галина Пагутяк

600.jpg

Подільський близнюк люксембурзької “Шарлотти”

Катерина

Прощавай, Катерино!

сео крим

Взаємний кредит у Таврійській губернії

універ сео

Університет у Чернівцях. Історія однієї споруди

Subotiv_church_of_Bohdan_Khmelnytsky

Домовина України, широка, глибока